Terrain
Brute
Description
Imaginez pouvoir combiner la verdure de la nature avec une Villa T5+1, où le design contemporain, les commodités haut de gamme et les espaces généreux ont été soigneusement pensés.
Cette résidence luxueuse et exceptionnelle bénéficie d’un emplacement privilégié au sein du prestigieux Oeiras Golf & Residence, à seulement 15 minutes des plages et des villes de Lisbonne, Cascais et Sintra.
Le projet architectural privilégie l’utilisation du bois, du verre et du métal laqué, dans une combinaison parfaite avec la verdure environnante, conférant un design à la fois contemporain et intemporel.
Située sur un terrain de 1.344 m², avec des espaces généreux (575 m² de surface brute de construction), cette villa est parfaitement équipée pour accueillir une grande famille : elle offre 5 chambres (dont 4 en suite) avec la possibilité de créer une chambre supplémentaire au sous-sol (voir plan optionnel), 2 salons (un au rez-de-chaussée et un au sous-sol), 6 salles de bain, pour un total de 11 pièces, ainsi qu’un stationnement pouvant accueillir jusqu’à 6 véhicules (2 ou 4 en box fermée, plus 2 à l’extérieur).
Ici, les loisirs ont été « pensés en grand » : un séduisant espace extérieur orienté Sud/Ouest est parfait pour les moments de détente, avec une grande piscine à débordement (43,7 m²) avec zone de plage, entourée d’une vaste terrasse céramique (136 m²) comprenant une cheminée extérieure au bioéthanol, une zone barbecue (29,78 m²) avec cuisine d’été équipée et espace repas, ainsi que de larges zones paysagées totalisant 396 m².
Mais le confort ne s’arrête pas là : un vaste espace polyvalent au sous-sol (47,9 m²), baigné de lumière naturelle, un Home Cinema (21,9 m²), un Gymnase (26,3 m²), plus 1 Suite (optionnelle), définissent le véritable luxe contemporain : vivre dans le confort, la sécurité et la tranquillité ! La maison est répartie sur 3 niveaux, comme suit :
Sous-sol (202 m²) - (voir plan et plan optionnel)
Le vaste sous-sol, éclairé naturellement, abrite le garage, une grande pièce polyvalente ouverte, des espaces de rangement et des zones techniques.
- Le sous-sol comprend un garage pour 2 voitures, équipé d’une porte coulissante. Si nécessaire, cet espace peut être agrandi pour accueillir jusqu’à 4 voitures. De plus, il existe une aire de stationnement extérieure pouvant accueillir 2 véhicules supplémentaires.
- Une grande salle polyvalente (47,9 m²) avec lumière naturelle provenant de plusieurs fenêtres, dont une donnant sur le jardin d’hiver (5,98 m²), un Home Cinema (21,9 m²), un Gymnase/Spa (26,3 m²), plus 1 Suite (voir plan optionnel).
- Buanderie (8,8 m²).
- Zone technique (5,13 m²).
- Toilettes sociales (2,14 m²).
- Espace avec préinstallation pour un ascenseur optionnel.
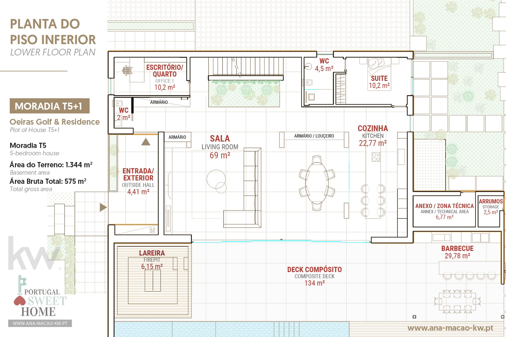
Rez-de-chaussée - (voir plan)
À ce niveau, on est accueilli dans un espace de vie spacieux, relié à la cuisine et baigné de lumière grâce aux grandes baies vitrées orientées vers la piscine et la cheminée extérieure.

- Comprend un vaste salon (69 m²), avec un jardin intérieur (7,15 m²), un meuble TV plaqué en noyer américain, une cheminée au bioéthanol et une vue sur le jardin/piscine. Le salon dispose d’une double hauteur sous plafond avec de grandes baies vitrées donnant sur l’étage supérieur.
- Cuisine entièrement équipée (22,77 m²), reliée au salon par une cloison vitrée.
- Suite (10,2 m²) avec salle de bain (4,5 m²).
- Bureau (10,2 m²), pouvant servir de chambre supplémentaire.
- Une pièce de rangement (2,5 m²).
- Toilettes sociales (2 m²).
Étage supérieur - (voir plan)
À l’étage supérieur se trouvent les 4 suites, orientées Sud/Ouest, avec vue sur le jardin et la piscine.

- La Suite principale offre une superficie généreuse (51,21 m²), répartie entre la zone nuit (23,62 m²), un dressing (15,29 m²) et une spacieuse salle de bain (12,3 m²) ! Cette suite dispose également d’un terrasse orientée à l’ouest (20,28 m²).
- Il existe également 3 autres suites de 25 m², 20,22 m² et 20,22 m², chacune avec sa propre salle de bain. La suite 1 a accès à un balcon privé orienté Sud, tandis que les deux autres partagent une terrasse commune avec vue sur le jardin et la piscine.
Caractéristiques
- Panneaux solaires
- Climatisation (CVC)
- Piscine à débordement avec pompe à chaleur (en option)
- Cheminées intérieure et extérieure au bioéthanol
- Buanderie équipée de machines à laver et à sécher le linge
- Système d’étanchéité des toitures
- Gouttières à fente centrale minimaliste pour l’évacuation des eaux pluviales
- Garde-corps en verre trempé
- Éclairage des auvents par bande LED sur tout le périmètre
- Portes et plinthes encastrées, laquées en blanc
- Meubles de cuisine, chambres et salles de bain, ainsi que les panneaux, plaqués en noyer
- Stores à enroulement motorisés
- Plafonds suspendus avec rainures pour éclairage LED indirect
- Sanitaires et robinetterie de marque Valadares
- Revêtement de sol vinyle type Arkitek de 4inBany dans les pièces principales, et grès cérame avec plancher chauffant dans les autres zones
Cette villa est actuellement en phase de construction et la fin des travaux est prévue pour avril/mai 2026, vous offrant la possibilité unique de personnaliser votre maison de rêve selon vos goûts personnels.
Oeiras Golf & Residence
La villa est située dans le complexe Oeiras Golf & Residence, à proximité des plus importantes zones d’affaires et universitaires du pays, et à seulement 15 minutes de Lisbonne et des plages de l’Estoril. Le projet s’étend sur 112 hectares d’espaces verts et comprend environ 500 logements, dont la majorité déjà construite et habitée. Le resort dispose d’un parcours de golf de 9 trous.
Dans les environs, on trouve de nombreuses options de loisirs, des écoles internationales et une vaste offre de services commerciaux et de santé de haute qualité :
- Loisirs et sport : Oeiras Golf, Fábrica da Pólvora (espace culturel, de loisirs et zones vertes), Académie et Centre Équestre João Cardiga (avec restaurant, 3 manèges et plus de 80 chevaux), plages d’Estoril et de Cascais, Marina d’Oeiras, etc.
- Écoles : Oeiras International School, International Sharing School, Universidade Atlântica, Faculté de Médecine (Université Catholique Portugaise), et collèges tels que S. Francisco de Assis, Colégio da Fonte et la future Académie Aga Khan.
- Restaurants : Restaurant Maria Pimenta, Restaurant 9&Meio Oeiras Golf, Picadeiro de Sabores.
- Commerces : Mercadona Taguspark, Oeiras Parque, Centro Comercial São Marcos, Forum Sintra, etc.
- Services : Hospital da Luz, Pharmacie Tanara, Gymnase Element TagusPark, entre autres.
- Entreprises : Taguspark, situé juste à côté, abrite certaines des plus grandes entreprises internationales telles que LG ou Novartis. À 10 minutes se trouvent Lagoas Park et le Parc d’Affaires Quinta da Fonte.
Le bien se situe à environ 8 minutes du centre d’Oeiras, 15 minutes de Lisbonne, 20 minutes de Cascais et 15 minutes de Sintra. Tout cela grâce à l’excellente accessibilité routière : autoroute A5, voie rapide IC19, et autoroutes CREL et IC16. Des transports publics sont également disponibles, notamment les bus de la Carris.
Ne manquez pas cette opportunité de vivre dans un véritable paradis résidentiel. Planifiez dès maintenant votre visite et commencez à imaginer votre avenir dans ce projet exclusif.
Caractéristiques:
Caractéristiques:
Extras- Cuisine équipée
- Domotique
- Bonne exposition au soleil
Caractéristiques:
Energie/Chauffage- Cheminée
- Chauffage par le sol
- Panneaux Solaires
- Climatisation
Caractéristiques:
Sécurité- Volets électriques
- Portail électrique
- Porte blindée
- Vidéophone
Caractéristiques:
Espaces- Armoire
- Placard
- Pièce de rangement
- Annexes
- Hall d'entrée
- Grille / Barbecue
- Buanderie
Caractéristiques:
Extérieur- Irrigation automatique
- Double vitrage
Caractéristiques:
Vues- Vue sur campagne

