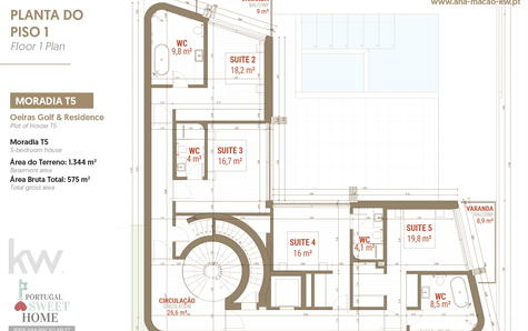
Here you can find some examples of architecture plans related to real estate promoted by me in the scope of my real estate activity.
This page is intended as an inspiration only, since some of the properties may already be sold or simply deactivated. In case of doubt, you can consult me.